IDALYNEIDALYNEIDALYNE
ProjectsServicesContact Us
AdminAdmin LoginRequest
Back to Projects

Project Detail

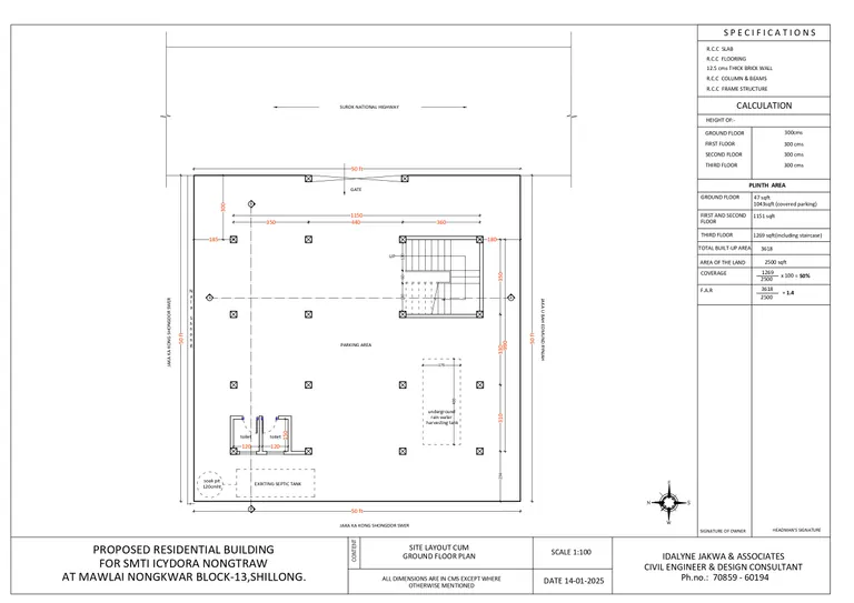
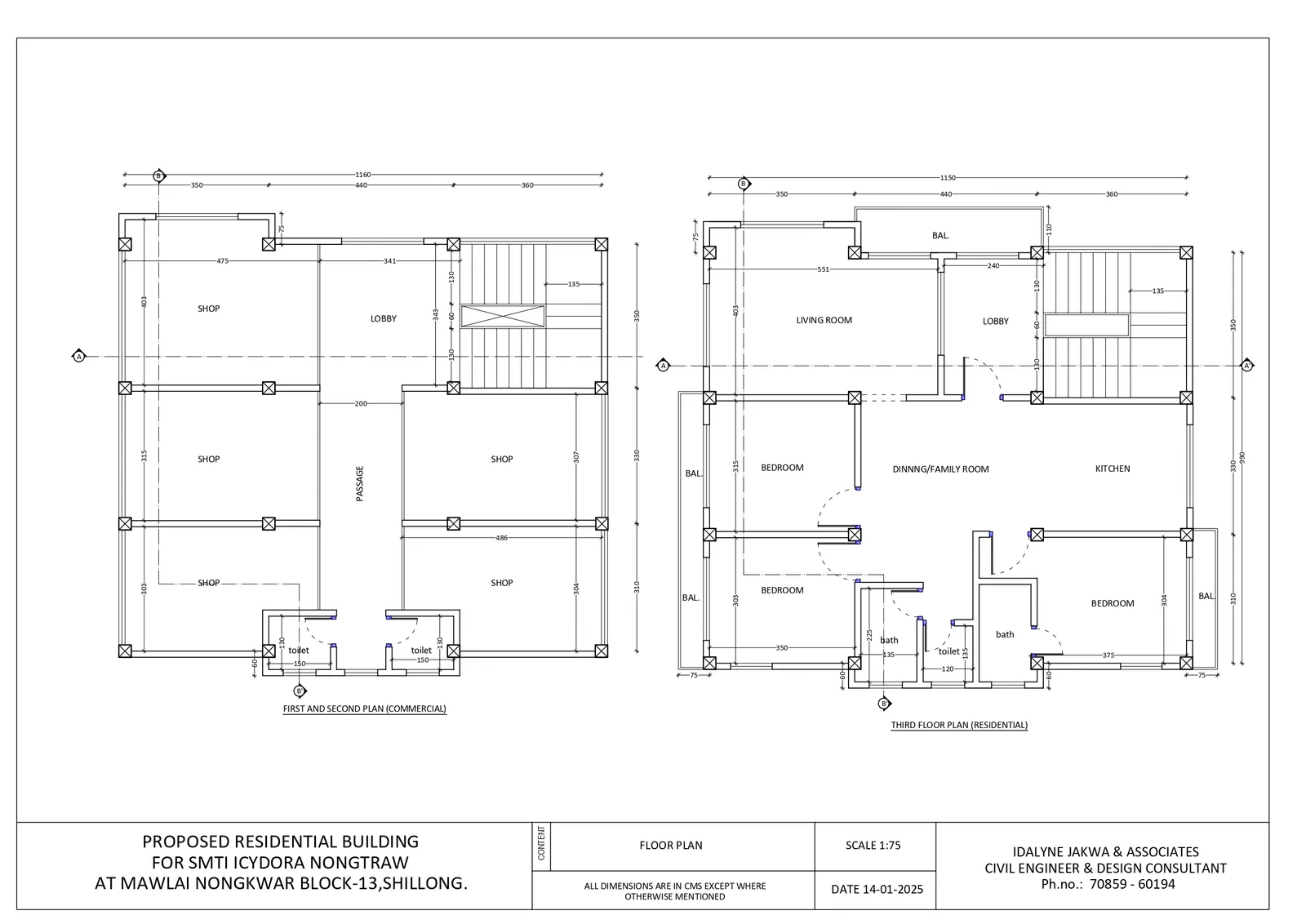
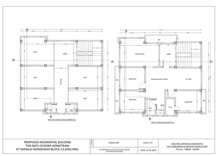
Residential Mawlai Shillong

Private residential 2D drawing package focused on plan clarity, practical room layouts, and approval-ready documentation.

2D Drawing

Project Facts

Location
Mawlai, Shillong
Year
2025
Client
Private

Image 1 of 2

IDALYNEIDALYNEIDALYNE

Idalyne Jakwa Architect is a premium architecture portfolio and enquiry platform serving residential, hospitality, and approval-ready documentation work across Shillong, Ri-Bhoi (Meghalaya).

Portfolio showcase · Project enquiry flow · Technical service overview

Navigate

Home↗Projects↗Services↗Contact↗

Creator Credit

Website designed and developed by Fleming Syiemlieh.

Available for portfolio, business, and custom website projects.

Contact the creatorEmail

© 2026 Idalyne Jakwa Architect. All rights reserved.

Built by Fleming Syiemlieh for a premium architectural presentation.