IDALYNEIDALYNEIDALYNE
ProjectsServicesContact Us
AdminAdmin LoginRequest
Back to Projects

Project Detail

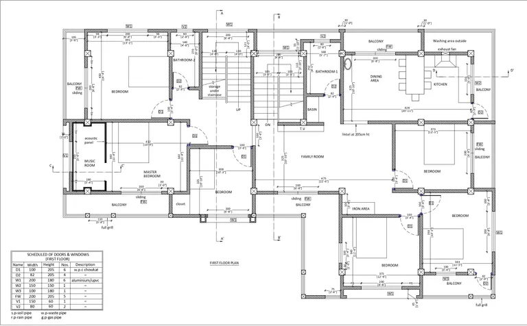
Residential Pahamsyiem

Residential design study with coordinated plan development and practical construction intent.

2D DrawingStructural DesignEstimate

Project Facts

Location
Pahamsyiem
Year
2025
Client
Private

Image 1 of 2

Design Narrative

Project sequence and decision path

Review key spatial and technical decisions step by step. Scroll through or select any step to explore the related drawing frame.

Residential Pahamsyiem story image 1
STEP 1 / 3

Next Step

Interested in a similar approach?

If Residential Pahamsyiem reflects the type of work you need, start an inquiry and we will discuss scope, timeline, and deliverables.

Start a project inquiry
IDALYNEIDALYNEIDALYNE

Idalyne Jakwa Architect is a premium architecture portfolio and enquiry platform serving residential, hospitality, and approval-ready documentation work across Shillong, Ri-Bhoi (Meghalaya).

Portfolio showcase · Project enquiry flow · Technical service overview

Navigate

Home↗Projects↗Services↗Contact↗

Creator Credit

Website designed and developed by Fleming Syiemlieh.

Available for portfolio, business, and custom website projects.

Contact the creatorEmail

© 2026 Idalyne Jakwa Architect. All rights reserved.

Built by Fleming Syiemlieh for a premium architectural presentation.